Hohen Neuendorf:
Design trifft Lebensqualität – Architektenhaus mit Gartenidylle und großzügigem Außenbereich“
Objekt-Nr.: KR-03

Außenansicht

Terasse

Terrasse

Auffahrt

Eingangsbereich mit Blick auf die Treppe zur Oberen Etage

Küche

Eingangsbereich

Wohnzimmer

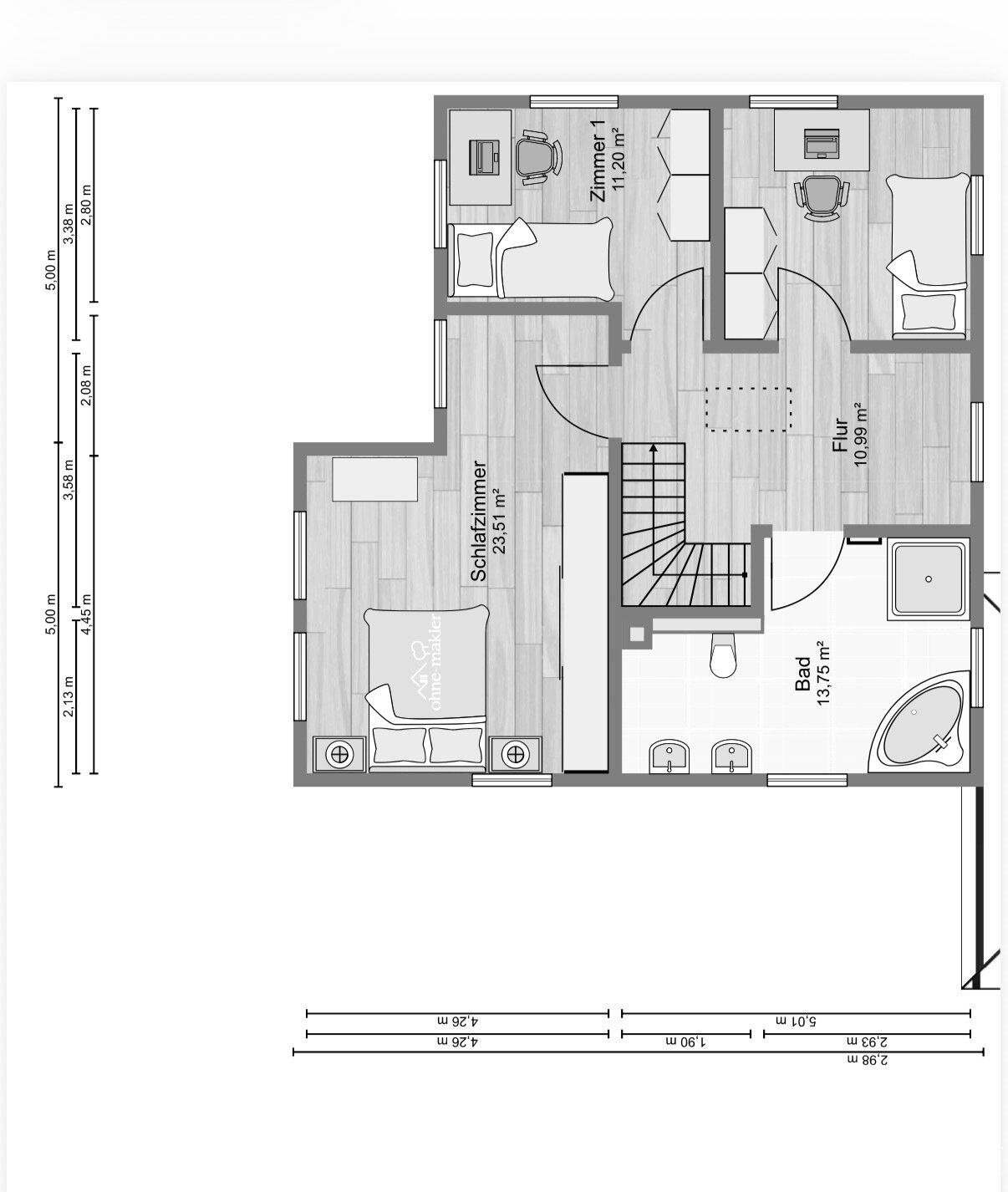
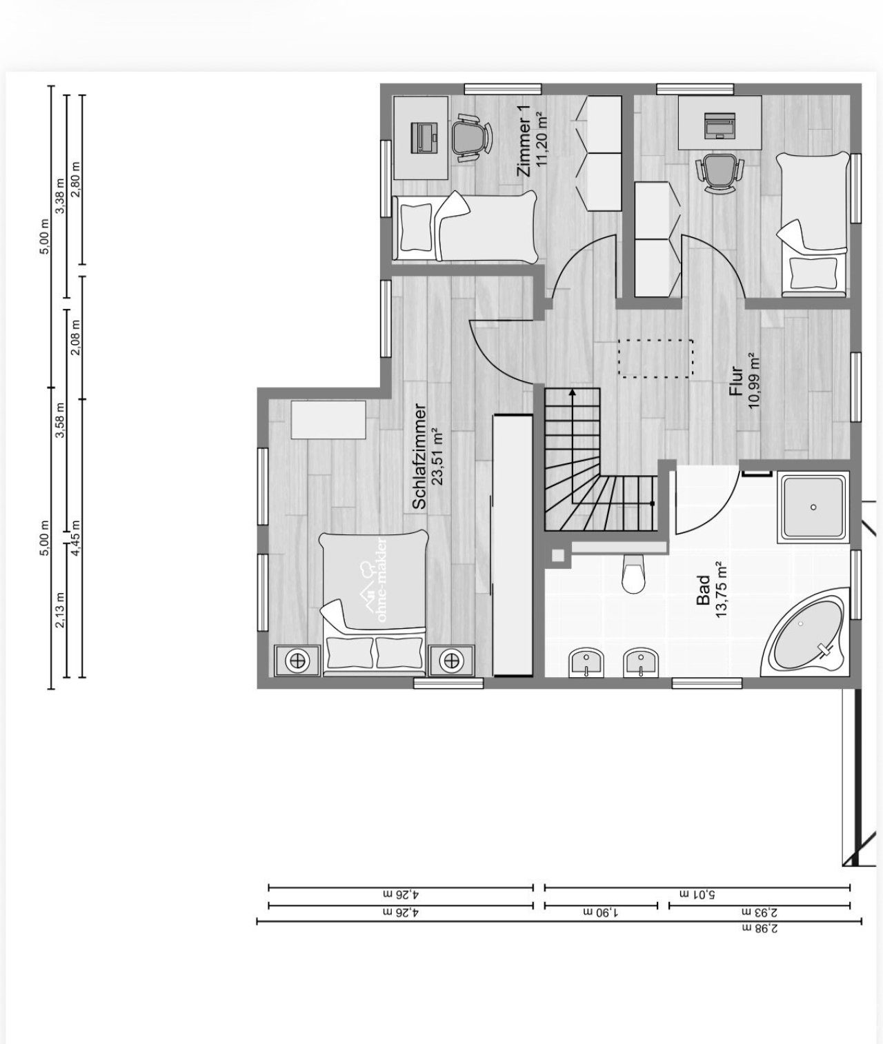
Grundriss 2. Etage









Preis:
799.000 €
Wohnfläche ca.:
140 m²
Grundstück ca.:
433 m²
Zimmeranzahl:
4
Dieses stilvolle Architektenhaus überzeugt durch eine moderne Architektur, einen hervorragenden Pflegezustand und ein besonders helles, lichtdurchflutetes Wohnambiente. Große Fensterflächen sorgen in allen Bereichen für eine freundliche und offene Atmosphäre.
Bereits beim Betreten des Hauses empfängt Sie ein einladender Eingangsbereich, der den hochwertigen Gesamteindruck der Immobilie unterstreicht. Der großzügige Wohn- und Essbereich mit direktem Zugang zur Terrasse bildet das Herzstück des Hauses und schafft eine harmonische Verbindung zwischen Innen- und Außenbereich.
Der gepflegte Garten bietet einen geschützten Rückzugsort und lädt zum Entspannen ein. Abgerundet wird das Gesamtbild durch eine Garage mit direktem Zugang zum Haus, die zusätzlichen Komfort im Alltag bietet.
Insgesamt präsentiert sich die Immobilie in einem äußerst gepflegten Zustand und eignet sich ideal für Paare oder Familien, die ein modernes und hochwertiges Zuhause
Etagenanzahl: 2
Provisionspflichtig: ja
Provision: ja
Bad: Dusche, Wanne
Anzahl Schlafzimmer: 2
Anzahl Badezimmer: 2
Terrasse: 1
Seniorengerecht: ja
Gäste-WC: ja
Garten: ja
Nichtraucher: ja
Dachboden: ja
Kamin: ja
Alarmanlage: ja
Umgebung: Bahnhof, Bus, Einkaufscenter, Grundschule, Kindergarten, ruhige Gegend, Tennisplatz
Anzahl der Parkflächen: 1 x Garage
Möbliert: Teilmöbliert
Qualität der Ausstattung: Luxus
Verfügbar ab: 2026
Zustand: neuwertig
Energieklasse: A+
Heizung: Zentralheizung
Energieausweistyp: Energieausweis liegt zur Besichtigung vor
Der Courtageanteil des Käufers beträgt 3,57 % des tatsächlichen Kaufpreises inklusive der gesetzlichen Mehrwertsteuer. Der Courtageanteil ist im Kaufpreis nicht enthalten und ist vom Käufer an KEY & CASTLE GmbH (Walliser Str. 15,13407) zu zahlen. Er ist fällig und zahlbar bei Notariat. Vorstehendes Angebot freibleibend und gemäß unseren Allgemeinen Geschäftsbedingungen.
Die von uns gemachten Informationen beruhen auf Angaben des Verkäufers bzw. der Verkäuferin. Für die Richtigkeit und Vollständigkeit der Angaben kann keine Gewähr bzw. Haftung übernommen werden. Ein Zwischenverkauf und Irrtümer sind vorbehalten.
Nach Anfrage und Angabe der vollständigen Kontakt- und Adressangaben, erhalten Sie den Zugriff zum ausführlichen Exposé der entsprechenden Immobilie per E-Mail.
__________________________________
BESUCHEN SIE AUCH GERNE UNSERE WEBSITE FÜR:
Weitere Informationen: https://keyandcastle.de/immobilie
Die Bewertung Ihrer Immobilie: https://keyandcastle.de/immobilienbewertung/
Alle Informationen zu unserer großzügigen Tippgeber-Prämie: https://keyandcastle.de/praemie/
Wir sind stetig auf der Suche nach neuen Immobilien für vorgemerkte Kunden. Lassen Sie Ihre Immobilie auf unserer Website kostenlos von einem Experten einwerten oder profitieren Sie von unserer großzügigen Tippgeber-Provision, wenn Sie jemanden kennen, der seine Immobilie verkaufen möchte.
Wir weisen auf unsere Allgemeinen Geschäftsbedingungen hin. Durch weitere Inanspruchnahme unserer Leistungen erklären Sie die Kenntnis und Ihr Einverständnis.
Das könnte Ihnen auch gefallen
KEY & CASTLE GmbH
Frau Frau KEY & CASTLE GmbH
Kurfürstendamm96
10711 Berlin Charlottenburg
Telefon: +49 30 403684150














































