Berlin:
3-Zimmer, Küche, Bad, Strausberger Platz
Objekt-Nr.: RW-423

Zimmer01

Diele01

Zimmer03

Zimmer02

Küche01

Badezimmer01

Eingang

Entree

Entree1

Aufzug

006











Preis:
489.000 €
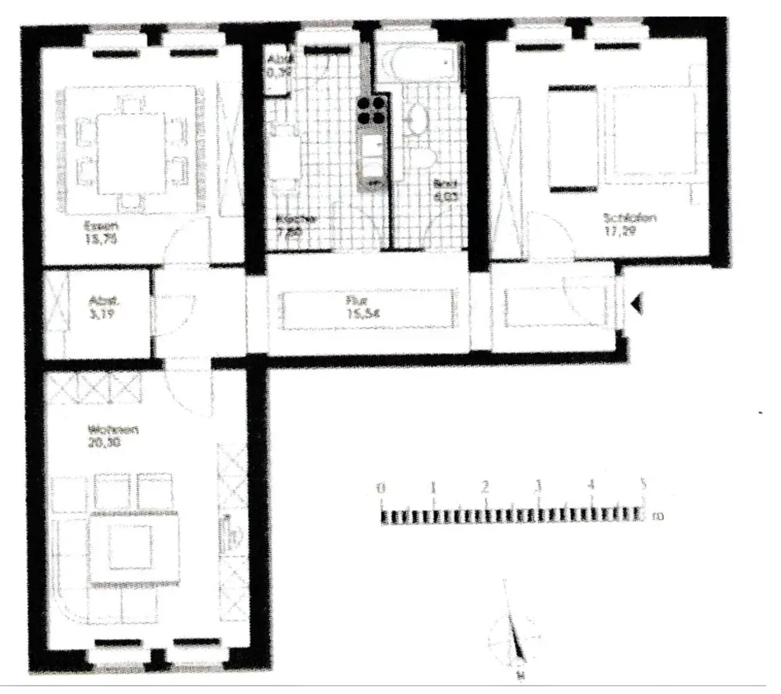
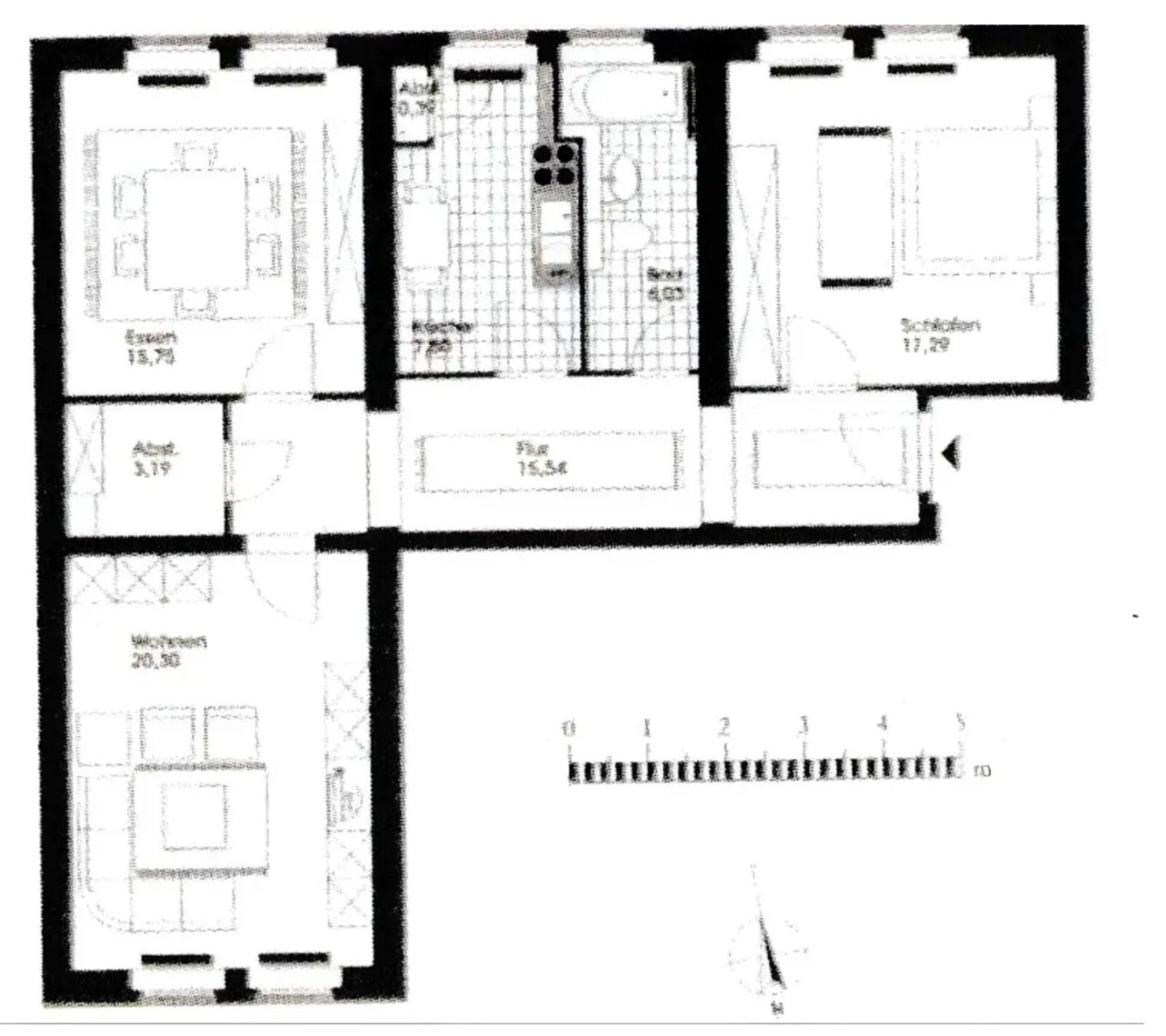
Wohnfläche ca.:
86,70 m²
Zimmeranzahl:
3
Diese exklusive 3-Zimmer-Wohnung mit einer Wohnfläche von 86 m² vereint den unverwechselbaren Charme eines historischen Altbaus mit dem zeitgemäßen Komfort moderner Ausstattung. Sie befindet sich in einem der repräsentativen Gebäude der Karl-Marx-Allee, entworfen vom renommierten Architekten Hermann Henselmann – ein eindrucksvolles Zeugnis architektonischer Meisterleistung und historischer Bedeutung.
Die Wohnung überzeugt durch ein großzügiges Raumangebot, das optimal auf die Ansprüche moderner Familien abgestimmt ist. Der weitläufige Wohnbereich lädt zum Verweilen ein, während die hochwertige Einbauküche mit Markengeräten und das geschmackvoll gestaltete Badezimmer mit Badewanne den historischen Charakter stilvoll ergänzen....
Ein besonderes Ausstattungsmerkmal ist die begehbare Ankleide. Die barrierefreie Ausführung sowie die umfassende Sanierung im Jahr 2016 – inklusive moderner Elektroinstallation und zeitgemäßer Netzwerktechnologie – gewährleisten höchsten Wohnkomfort und eine zukunftssichere Lebensqualität.
Wohnungstyp: Etagenwohnung
Etage: 2
Etagenanzahl: 7
Provisionspflichtig: ja
Provision: 3,57 % des tatsächlichen Kaufpreises (inkl. MwSt.)
Küche: Einbauküche
Bad: Wanne
Anzahl Schlafzimmer: 2
Anzahl Badezimmer: 1
Nichtraucher: ja
Keller: Abstellraum
Fahrstuhl: ja
Letzte Modernisierung/ Sanierung: 2024
Qualität der Ausstattung: gehoben
Baujahr: 1955
Hausgeld: 385 €
Bezugsfrei ab: 01. November 2025
Zustand: vollständig renoviert
Energieklasse: BEA
Der Courtageanteil des Käufers beträgt 3,57 % des tatsächlichen Kaufpreises inklusive der gesetzlichen Mehrwertsteuer. Der Courtageanteil ist im Kaufpreis nicht enthalten und ist vom Käufer an KEY & CASTLE GmbH (Walliser Str. 15,13407) zu zahlen. Er ist fällig und zahlbar bei Notariat. Vorstehendes Angebot freibleibend und gemäß unseren Allgemeinen Geschäftsbedingungen.
Die von uns gemachten Informationen beruhen auf Angaben des Verkäufers bzw. der Verkäuferin. Für die Richtigkeit und Vollständigkeit der Angaben kann keine Gewähr bzw. Haftung übernommen werden. Ein Zwischenverkauf und Irrtümer sind vorbehalten.
Nach Anfrage und Angabe der vollständigen Kontakt- und Adressangaben, erhalten Sie den Zugriff zum ausführlichen Exposé der entsprechenden Immobilie per E-Mail.
__________________________________
BESUCHEN SIE AUCH GERNE UNSERE WEBSITE FÜR:
Weitere Informationen: https://keyandcastle.de/immobilie
Die Bewertung Ihrer Immobilie: https://keyandcastle.de/immobilienbewertung/
Alle Informationen zu unserer großzügigen Tippgeber-Prämie: https://keyandcastle.de/praemie/
Wir sind stetig auf der Suche nach neuen Immobilien für vorgemerkte Kunden. Lassen Sie Ihre Immobilie auf unserer Website kostenlos von einem Experten einwerten oder profitieren Sie von unserer großzügigen Tippgeber-Provision, wenn Sie jemanden kennen, der seine Immobilie verkaufen möchte.
Wir weisen auf unsere Allgemeinen Geschäftsbedingungen hin. Durch weitere Inanspruchnahme unserer Leistungen erklären Sie die Kenntnis und Ihr Einverständnis.
Das könnte Ihnen auch gefallen
Private Sky Villa – Luxusresidenz am Schiffbauerdamm



























