Berlin:
2 Zimmer am Teltowkanal - Südausrichtung in bester Steglitzer Lage
Objekt-Nr.: JO-0037-02

Umgebung

Ansicht

Wohnzimmer

Wohnzimmer

Schlafzimmer

Schlafzimmer

Bad

Bad

Flur

Flur

Kueche

Kueche

Treppenhaus

Treppenhaus

Umgebung

Umgebung

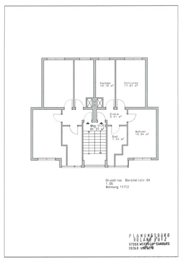
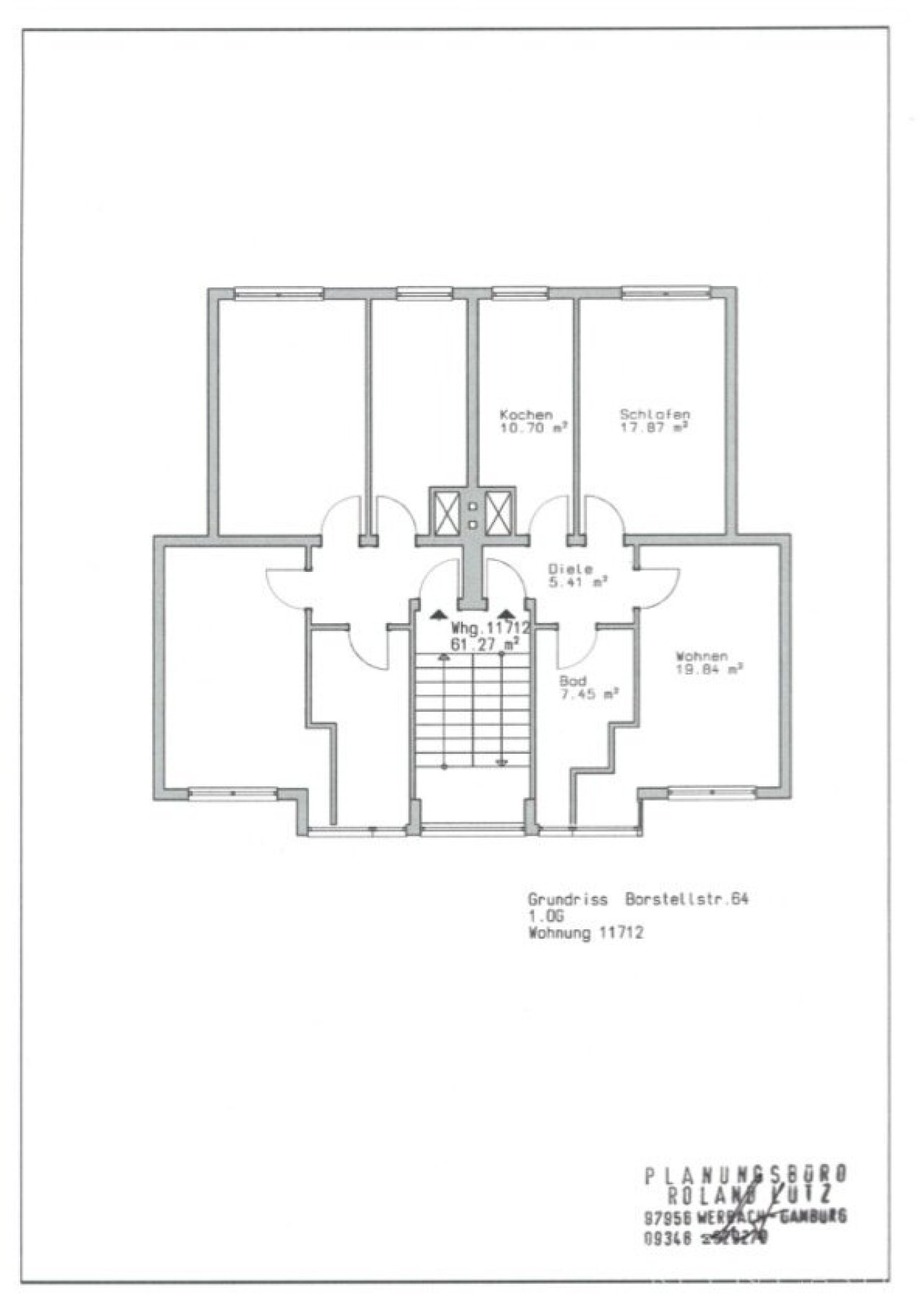
Grundriss Borstellstr. 64

Grundriss Whg.1.OG 11712 B64


















Preis:
315.000 €
Wohnfläche ca.:
60 m²
Zimmeranzahl:
2
Willkommen in Ihrem neuen Zuhause direkt am Teltowkanal!
Wir bieten Ihnen eine stilvolle, charmante 2-Zimmer-Altbauwohnung in einer besonders begehrten Lage – direkt am Teltowkanal. Diese 61qm große Wohnung in der ersten Etage eines gepflegten Ensembles aus dem Jahr 1926 vereint historischen Charme mit modernem Wohnkomfort.
Die Highlights auf einen Blick:
Lage, Lage, Lage: Die Borstellstraße in 12167 Steglitz bietet eine ruhige, grüne Umgebung mit direktem Zugang zum Teltowkanal, ideal für Spaziergänge und Erholung.
Historisches Flair: Charaktervoller Altbau mit hohen Decken und originalen Holzdielenböden, die der Wohnung ein warmes und unverwechselbares Ambiente verleihen.
Perfekter Grundriss: Die 61 qm verteilen sich ideal auf zwei helle Zimmer, eine Küche sowie ein Tageslichtbad, das für angenehmes Licht und Belüftung sorgt.
Ein eigener Außenstellplatz erspart Ihnen die lästige Parkplatzsuche und erhöht den Wohnwert signifikant.
Gute Energiebilanz: Solider Endenergieverbrauch von 124 kWh (Fernwärme).
Wohnungstyp: Etagenwohnung
Etage: 1
Etagenanzahl: 5
Provisionspflichtig: ja
Provision: 3,57 % des tatsächlichen Kaufpreises (inkl. MwSt.)
Nutzfläche ca.: 60 m²
Küche: Einbauküche
Bad: Dusche
Anzahl Schlafzimmer: 1
Anzahl Badezimmer: 1
Qualität der Ausstattung: normal
Baujahr: 1926
Hausgeld: 226 €
Bodenbelag: Dielen, Fliesen, Laminat
Zustand: gepflegt
Energieklasse: D
Heizung: Fernwärme
Energieausweistyp: Verbrauchsausweis
Energieeffizienz-Klasse: D
Baujahr laut Energieausweis: 1926
Der Courtageanteil des Käufers beträgt 3,57 % des tatsächlichen Kaufpreises inklusive der gesetzlichen Mehrwertsteuer. Der Courtageanteil ist im Kaufpreis nicht enthalten und ist vom Käufer an KEY & CASTLE GmbH (Walliser Str. 15,13407) zu zahlen. Er ist fällig und zahlbar bei Notariat. Vorstehendes Angebot freibleibend und gemäß unseren Allgemeinen Geschäftsbedingungen.
Die von uns gemachten Informationen beruhen auf Angaben des Verkäufers bzw. der Verkäuferin. Für die Richtigkeit und Vollständigkeit der Angaben kann keine Gewähr bzw. Haftung übernommen werden. Ein Zwischenverkauf und Irrtümer sind vorbehalten.
Wir weisen auf unsere Allgemeinen Geschäftsbedingungen hin. Durch weitere Inanspruchnahme unserer Leistungen erklären Sie die Kenntnis und Ihr Einverständnis.
Das könnte Ihnen auch gefallen

KEY & CASTLE GmbH
Herr Herr KEY & CASTLE GmbH
Am Karlsbad16
10785 Berlin Mitte
Telefon: +49 30 403684150








































