Berlin:
Lichterfelde - 2,5 Zimmer: komplett renovierte Wohnung mit Südausrichtung
Objekt-Nr.: JO-0038-02

Wohnzimmer

Ansicht

Wohnzimmer

Wohnzimmer

Balkon

Arbeitsbereich

Flur und Kueche

Kueche

Kueche

Schlafzimmer

Blick in Garten aus Schlafzimmer

Bad

Garten und Hauseingang

Garten

Garten

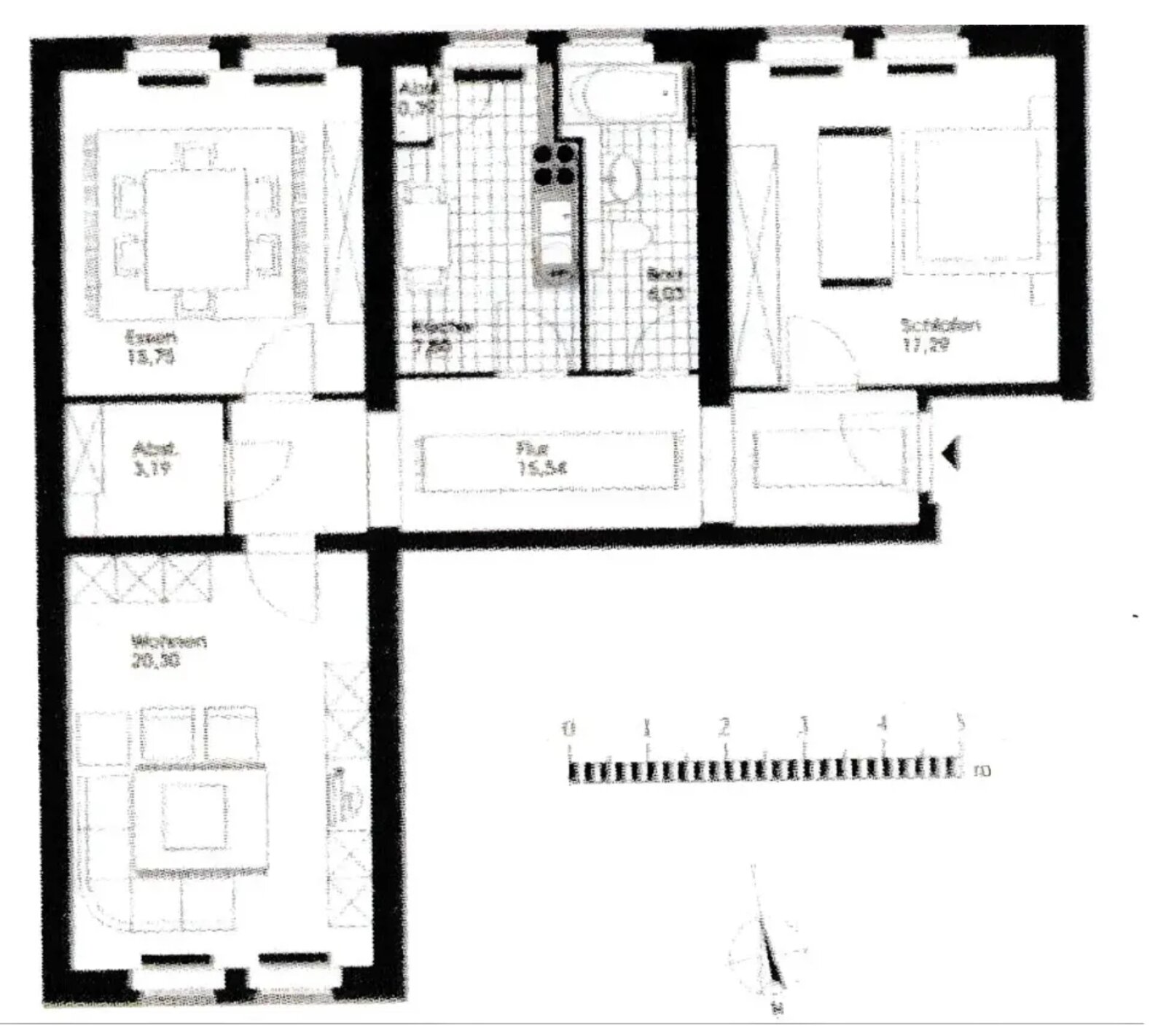
Grundriss Morgensternstr 11
















Preis:
330.000 €
Wohnfläche ca.:
65 m²
Zimmeranzahl:
2,5
Diese komplett renovierte Wohnung im 2. Obergeschoss besticht durch ihre helle Atmosphäre und eine morderne Ausstattung.
Aktuell bietet die Wohnung 2 Zimmer: ein ca. 30qm großes Wohnzimmer mit Balkon und Südausrichtung und ein "normal" großes Schlafzimmer mit Nordausrichtung.
Durch das Wiedereinziehen einer Wand im Wohnzimmer kann die ursprüngliche 3-Zimmer-Aufteilung mühelos wiederhergestellt werden. Oder Sie belassen die aktuelle, großzügige Aufteilung.
Die Wohnung verfügt zusätzlich über eine offen gestaltete Einbauküche und über einen Kellerraum.
Renovierung auf Fachniveau im Mai 2024: Profitieren Sie von einer Komplettsanierung durch Fachfirmen. Dazu gehören neu verputzte und gestrichene Außenwände, die Erneuerung der Rohre sowie ein saniertes Bad. Rechnungen sind vorhanden.
Außenbereich zum Entspannen: Neben einem eigenen Balkon steht Ihnen zur Erholung auch die Mitnutzung des hübsch gestalteten Gemeinschaftsgartens zur Verfügung – inklusive Gartenmöbeln und Grill.
Die Wohnung befindet sich in einer günstigen und sehr ruhigen Anliegerstraße, die diese Immobilie nahezu perfekt macht.
Ein privater Gemeinschaftsparkplatz für Pkws und Motorräder sowie Fahrradständer ist vorhanden.
Wohnungstyp: Etagenwohnung
Etage: 2
Etagenanzahl: 2
Provisionspflichtig: ja
Provision: 3,57 % des tatsächlichen Kaufpreises (inkl. MwSt.)
Küche: Einbauküche, offen
Bad: Dusche, Wanne
Anzahl Schlafzimmer: 1
Anzahl Badezimmer: 1
Balkon: 1
Garten: ja
Nichtraucher: ja
Keller: Abstellraum
Möbliert: Teilmöbliert
Letzte Modernisierung/ Sanierung: 2024
Qualität der Ausstattung: normal
Baujahr: 1964
Bezugsfrei ab: 1.1.2026
Bodenbelag: Fliesen
Zustand: gepflegt
Energieklasse: D
Heizung: Zentralheizung
Befeuerungsart: Öl
Energieausweistyp: Verbrauchsausweis
Energieeffizienz-Klasse: D
Baujahr laut Energieausweis: 1964
Der Courtageanteil des Käufers beträgt 3,57 % des tatsächlichen Kaufpreises inklusive der gesetzlichen Mehrwertsteuer. Der Courtageanteil ist im Kaufpreis nicht enthalten und ist vom Käufer an KEY & CASTLE GmbH (Walliser Str. 15,13407) zu zahlen. Er ist fällig und zahlbar bei Notariat. Vorstehendes Angebot freibleibend und gemäß unseren Allgemeinen Geschäftsbedingungen.
Die von uns gemachten Informationen beruhen auf Angaben des Verkäufers bzw. der Verkäuferin. Für die Richtigkeit und Vollständigkeit der Angaben kann keine Gewähr bzw. Haftung übernommen werden. Ein Zwischenverkauf und Irrtümer sind vorbehalten.
Wir weisen auf unsere Allgemeinen Geschäftsbedingungen hin. Durch weitere Inanspruchnahme unserer Leistungen erklären Sie die Kenntnis und Ihr Einverständnis.
Das könnte Ihnen auch gefallen

KEY & CASTLE GmbH
Herr Herr KEY & CASTLE GmbH
Am Karlsbad16
10785 Berlin Mitte
Telefon: +49 30 403684150



































