Berlin:
2-Zimmer Altbaujuwel im Herzen Schönebergs
Objekt-Nr.: SVR-96.3

Helle Fensterfront sorgt für eine freundliche Wohnatmosphäre

Großzügiger Wohnraum mit hohen Decken und viel Tageslicht

Langer Flur, der die Räume verbindet und Platz für Garderobe oder Dekoration bietet

Ruhiges Zimmer mit hellem Ambiente, ideal als Schlafzimmer oder Arbeitsbereich

Schönes Badezimmer mit viel Tageslicht

Freundliche Küche mit großem Fenster und angenehmer Belichtung

Praktischer Grundriss, der Platz für Koch- und Essbereich bietet

Heller Flur mit klassischen Altbaudielen


Freundlich gestalteter Aufgang im ruhigen Gartenhaus

Zugang zum Gartenhaus

Repräsentatives Entrée mit historischem Charme

Stilvolle Altbaufassade mit klassischer Architektur

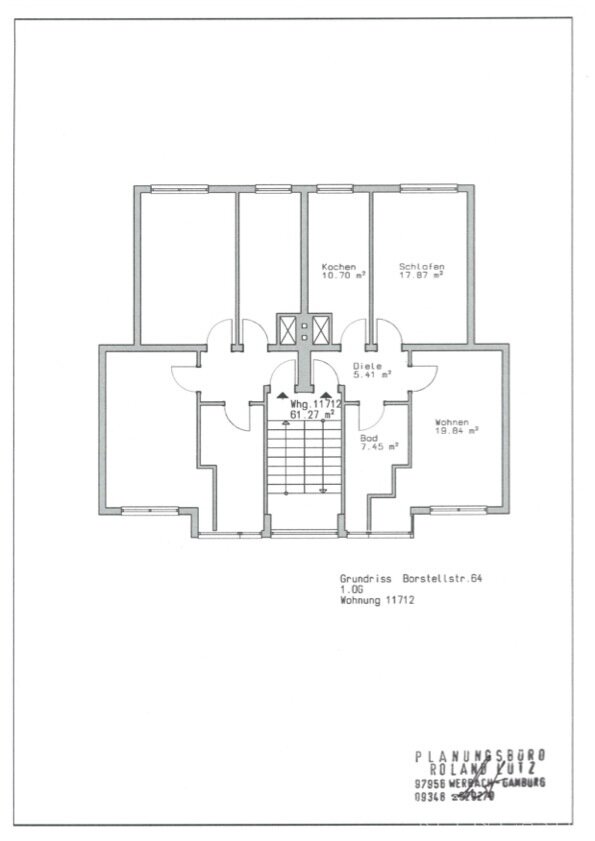
Grundriss














Preis:
498.000 €
Wohnfläche ca.:
75,02 m²
Zimmeranzahl:
2
Diese charmante Altbauwohnung im ruhigen Hinterhaus vereint stilvolles Wohnen mit klassischem Berliner Flair. Zwei großzügig geschnittene Zimmer, eine gepflegte Einbauküche und ein Wannenbad schaffen ein harmonisches Zuhause mit besonderem Charakter.
Hohe Stuckdecken, edles Fischgrätenparkett und originale Kassettentüren verleihen den Räumen eine zeitlose Eleganz und unterstreichen den unverwechselbaren Altbaucharme. Durch die Lage im 3. Obergeschoss und die großen Fenster ist die Wohnung angenehm hell und lichtdurchflutet – ein Ort, an dem man sich sofort wohlfühlt.
Ob als stilvolle Kapitalanlage (z. B. für eine WG) oder als gemütliches Zuhause für Paare – diese Wohnung bietet vielfältige Möglichkeiten. Ein Kellerraum rundet das attraktive Gesamtangebot ab.
Das monatliche Hausgeld beträgt 213,00 €.
Wohnungstyp: Etagenwohnung
Etage: 3
Etagenanzahl: 5
Provisionspflichtig: ja
Provision: 3,57 % des tatsächlichen Kaufpreises (inkl. MwSt.)
Küche: Einbauküche
Bad: Wanne, Fenster
Anzahl Schlafzimmer: 2
Anzahl Badezimmer: 1
Keller: Abstellraum
Umgebung: Apotheke, Bahnhof, Bus, Einkaufsmöglichkeit, Fitness, Grundschule, Kindergarten, Park, Spielplatz
Baujahr: 1899
Hausgeld: 213 €
Bezugsfrei ab: sofort
Der Courtageanteil des Käufers beträgt 3,57 % des tatsächlichen Kaufpreises inklusive der gesetzlichen Mehrwertsteuer. Der Courtageanteil ist im Kaufpreis nicht enthalten und ist vom Käufer an KEY & CASTLE GmbH (Walliser Str. 15,13407) zu zahlen. Er ist fällig und zahlbar bei Notariat. Vorstehendes Angebot freibleibend und gemäß unseren Allgemeinen Geschäftsbedingungen.
Die von uns gemachten Informationen beruhen auf Angaben des Verkäufers bzw. der Verkäuferin. Für die Richtigkeit und Vollständigkeit der Angaben kann keine Gewähr bzw. Haftung übernommen werden. Ein Zwischenverkauf und Irrtümer sind vorbehalten.
Wir weisen auf unsere Allgemeinen Geschäftsbedingungen hin. Durch weitere Inanspruchnahme unserer Leistungen erklären Sie die Kenntnis und Ihr Einverständnis.
Das könnte Ihnen auch gefallen





































