Berlin:
Helle 2-Zimmer Wohnung direkt an der Spree
Objekt-Nr.: SVR-46.1


Preis:
520.000 €
Wohnfläche ca.:
65 m²
Zimmeranzahl:
2
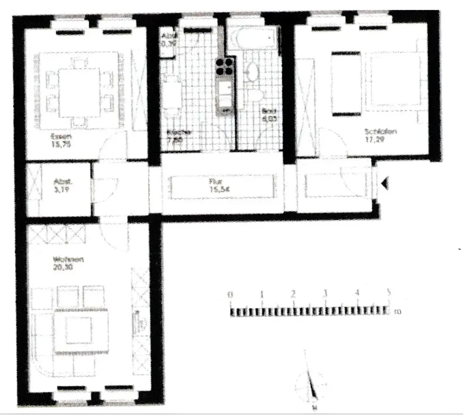
Diese helle 2-Zimmer-Wohnung befindet sich in einem modernen Wohnhaus aus dem Jahr 2016 an der Stralauer Allee in Berlin-Friedrichshain. Auf rund 65 m² bietet sie ein durchdachtes Raumkonzept und ein stilvolles Wohnambiente. Der großzügige Wohn- und Essbereich mit moderner Einbauküche bildet das Herzstück der Wohnung und lädt zum Wohlfühlen ein. Bodentiefe Fenster schaffen in allen Wohnräumen eine freundliche, lichtdurchflutete Atmosphäre. Das Schlafzimmer bietet ausreichend Platz für einen erholsamen Rückzugsort, während das Badezimmer mit Wanne und separater Dusche sowie einem Fenster für Tageslicht überzeugt. Eine praktische Abstellkammer sorgt für zusätzlichen Stauraum, und der kleine Balkon bietet einen angenehmen Ort zum Entspannen im Freien. Insgesamt präsentiert sich die Wohnung in einem modernen, gepflegten Zustand und eignet sich ideal für Singles, Paare oder als attraktive Kapitalanlage.
Die Wohnung liegt in gefragter Lage von Berlin-Friedrichshain, direkt an der Stralauer Allee – nur wenige Schritte von der Spree entfernt. Die Umgebung vereint urbanes Leben mit entspanntem Flair: Zahlreiche Cafés, Restaurants und Bars prägen das lebendige Viertel, während Grünflächen und Spazierwege entlang des Wassers Erholung bieten. Durch die Nähe zur Warschauer Straße, zum Ostkreuz und zur Mediaspree ist eine hervorragende Anbindung an den öffentlichen Nahverkehr sowie an wichtige Verkehrsknotenpunkte gewährleistet. Einkaufsmöglichkeiten, Kulturangebote und Freizeitaktivitäten befinden sich in unmittelbarer Umgebung – ein idealer Standort für alle, die das pulsierende Berliner Stadtleben mit modernem Wohnkomfort verbinden möchten.
Wohnungstyp: Etagenwohnung
Etage: 1
Etagenanzahl: 6
Küche: Einbauküche
Bad: Dusche, Wanne
Anzahl Schlafzimmer: 1
Anzahl Badezimmer: 1
Balkon: 1
Fahrstuhl: ja
Barrierefrei: ja
Baujahr: 2016
Der Courtageanteil des Käufers beträgt 3,57 % des tatsächlichen Kaufpreises inklusive der gesetzlichen Mehrwertsteuer. Der Courtageanteil ist im Kaufpreis nicht enthalten und ist vom Käufer an KEY & CASTLE GmbH (Walliser Str. 15,13407) zu zahlen. Er ist fällig und zahlbar bei Notariat. Vorstehendes Angebot freibleibend und gemäß unseren Allgemeinen Geschäftsbedingungen.
Die von uns gemachten Informationen beruhen auf Angaben des Verkäufers bzw. der Verkäuferin. Für die Richtigkeit und Vollständigkeit der Angaben kann keine Gewähr bzw. Haftung übernommen werden. Ein Zwischenverkauf und Irrtümer sind vorbehalten.
Wir weisen auf unsere Allgemeinen Geschäftsbedingungen hin. Durch weitere Inanspruchnahme unserer Leistungen erklären Sie die Kenntnis und Ihr Einverständnis.
Das könnte Ihnen auch gefallen
























