Berlin:
Stilvolle Altbauwohnung mit hohen Decken – 2 Zimmer in Schöneberg
Objekt-Nr.: SVR-95

Zugang zum Gartenhaus

Repräsentatives Entrée mit historischem Charme

Heller Flur mit klassischen Altbaudielen

Freundliche Küche mit großem Fenster und angenehmer Belichtung

Praktischer Grundriss, der Platz für Koch- und Essbereich bietet

Langer Flur, der die Räume verbindet und Platz für Garderobe oder Dekoration bietet

Ruhiges Zimmer mit hellem Ambiente, ideal als Schlafzimmer oder Arbeitsbereich

Helle Fensterfront sorgt für eine freundliche Wohnatmosphäre

Großzügiger Wohnraum mit hohen Decken und viel Tageslicht

Vielseitig nutzbarer Raum, ideal als Wohn- oder Schlafzimmer

Schönes Badezimmer mit viel Tageslicht


Freundlich gestalteter Aufgang im ruhigen Gartenhaus

Stilvolle Altbaufassade mit klassischer Architektur

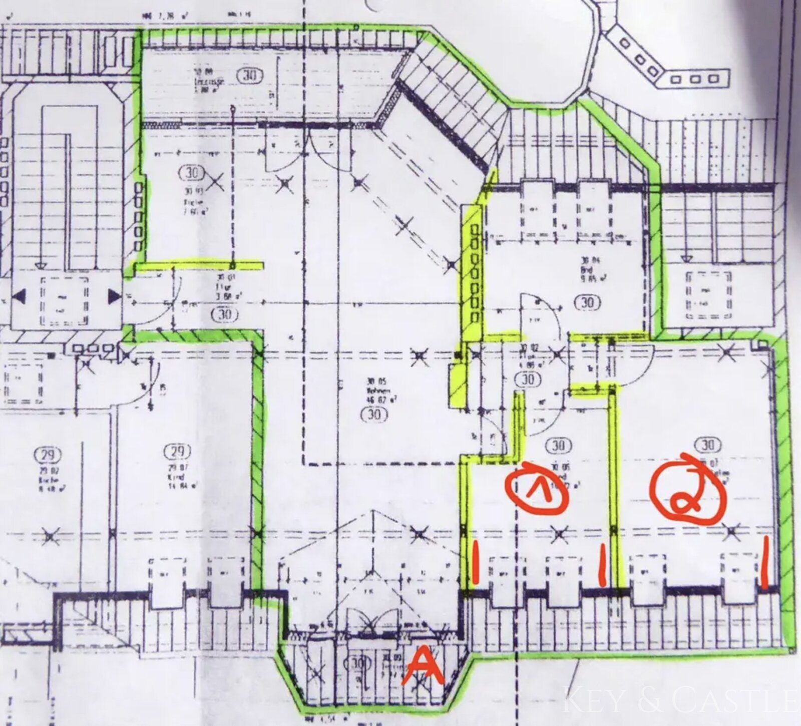
Grundriss















Preis:
498.000 €
Wohnfläche ca.:
75 m²
Zimmeranzahl:
2
Diese charmante Altbauwohnung liegt im ruhigen Hinterhaus und überzeugt mit zwei großzügig geschnittenen Zimmern, einer Einbauküche sowie einem Wannenbad. Klassische Altbaudetails wie hohe Stuckdecken, edles Fischgrätenparkett und originale Kassettentüren verleihen dem Zuhause eine besonders stilvolle Atmosphäre.
Dank der Lage im 3. Obergeschoss und den großen Fenstern sind die Räume angenehm lichtdurchflutet. Die Wohnung eignet sich sowohl hervorragend als Kapitalanlage (z. B. für eine WG) als auch als gemütliches Zuhause für Paare. Ein Kellerraum rundet das Angebot ab.
Das Hausgeld beträgt 213,00€ monatlich.
Wohnungstyp: Etagenwohnung
Etage: 3
Etagenanzahl: 5
Provisionspflichtig: ja
Provision: 3,57 % des tatsächlichen Kaufpreises (inkl. MwSt.)
Küche: Einbauküche
Bad: Wanne, Fenster
Anzahl Schlafzimmer: 2
Anzahl Badezimmer: 1
Keller: Abstellraum
Umgebung: Apotheke, Bahnhof, Bus, Einkaufsmöglichkeit, Fitness, Grundschule, Kindergarten, Park, Spielplatz
Baujahr: 1899
Hausgeld: 213 €
Bezugsfrei ab: sofort
Der Courtageanteil des Käufers beträgt 3,57 % des tatsächlichen Kaufpreises inklusive der gesetzlichen Mehrwertsteuer. Der Courtageanteil ist im Kaufpreis nicht enthalten und ist vom Käufer an KEY & CASTLE GmbH (Walliser Str. 15,13407) zu zahlen. Er ist fällig und zahlbar bei Notariat. Vorstehendes Angebot freibleibend und gemäß unseren Allgemeinen Geschäftsbedingungen.
Die von uns gemachten Informationen beruhen auf Angaben des Verkäufers bzw. der Verkäuferin. Für die Richtigkeit und Vollständigkeit der Angaben kann keine Gewähr bzw. Haftung übernommen werden. Ein Zwischenverkauf und Irrtümer sind vorbehalten.
Wir weisen auf unsere Allgemeinen Geschäftsbedingungen hin. Durch weitere Inanspruchnahme unserer Leistungen erklären Sie die Kenntnis und Ihr Einverständnis.
Das könnte Ihnen auch gefallen



























